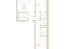
2-к. квартира 67.3 кв.м, 6/7

11

36108

№ объекта

2

комнат

67.3

площадь м²

6

этаж из 7

22 545 500 ₽

Описание

На высоком берегу в районе Ореховой рощи продаются апартаменты премиум-класса.
Двухкомнатная (евро 3) общей площадью 67,3 кв.м. Вид на парк.

Апартаменты продаются в чистовой отделке:
-паркет из массива дуба «Американский орех»;
-санузлы облицованы итальянской керамической плиткой Карелли (Kerama Marazzi), цвет бежевый светлый глянец, на полу – керамический гранит Сальветти;
-стены под покраску;
-двухуровневый потолок из гипсокартона (высота потолка 3м);
-алюминиевые окна с атермальным остеклением, с защитой от УФ-лучей;
-отопление и кондиционирование подается воздушным путем через фанкойлы, установленные в каждой комнате. Также, установлены внутрипольные конвекторы, расположенные у панорамных окон.
-межкомнатные и входные двери от фабрики Bafa.
-кухонный гарнитур в стиле: неоклассика и модерн;
-качественная сантехника в сан.узле.
Высота потолков - 2,7 м., широкие панорамные окна.
Коммуникации центральные (электричество, водоотведение, водоснабжение, отопление).

Этот комплекс резиденций с благородным обаянием в каждой детали. Локация в одном из самых престижных районов города , на первой береговой линии Черного моря. Расположение совмещает в себе первозданный природный ландшафт и современную инфраструктуру . Здесь в гармонии с горными пейзажами , чистым небом и морским ветром , вы можете отдохнуть от городской суеты и набраться вдохновения для новых свершений . Здания комплекса были выполнены во французском стиле Осман (Haussmann).Комплекс возведен на курортной набережной . Здесь расположены исторические памятники , культурные центры , в шаговой доступности находится парк " ОРЕХОВАЯ РОЩА " , где при желании , можно прогуляться и полюбоваться красотой природы.

Характеристики

Статус Архив
Тип Продажа
Населенный пункт г Анапа
Адрес ул Толстого
Комнат 2
Этаж: 6
Общая площадь: 67.3 м²
Жилая площадь: 26 м²

Поделиться

Whatsapp
Telegram
ВКонтакте
Одноклассники
Заинтересовал объект?
База Панорама агент (800) 550-55-97

или позвоните по бесплатному номеру

8 800 550 55 97

или заполните форму обратной связи

ПОХОЖИЕ ОБЪЕКТЫ

4-к. квартира 145 кв.м, 19/20

Анапа, ул Владимирская

24 500 000 руб.

2-к. квартира 71.4 кв.м, 3/5

Анапа, ул Поликарпова

21 600 000 руб.

4-к. квартира 145.7 кв.м, 9/9

Анапа, ул Омелькова

23 500 000 руб.

5-к. квартира 159 кв.м, 1/10

Анапа, ул Ленина

23 690 000 руб.

3-к. квартира 120 кв.м, 1/7

Анапа, ул Самбурова

20 600 000 руб.

1-к. квартира 72 кв.м, 5/23

Анапа, ул Крестьянская

21 500 000 руб.