1-к. квартира 43 кв.м, 12/17

9

49504

№ объекта

1

комнат

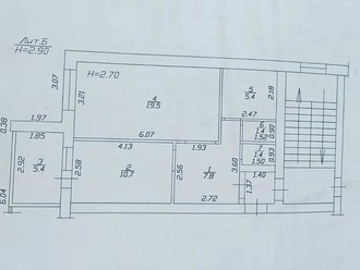
43

площадь м²

12

этаж из 17

6 400 000 ₽

Описание

Продается 1-комнатная квартира 43 кв.м. с хорошим ремонтом на 12 этаже 17-этажного панельного дома по ул. Ленина. Квартира с видом на море. Центральное отопление.

Характеристики

Статус Активный
Тип Продажа
Населенный пункт г Анапа
Адрес ул Ленина
Комнат 1
Этаж: 12
Общая площадь: 43 м²
Жилая площадь: 18 м²

Поделиться

Whatsapp
Telegram
ВКонтакте
Одноклассники
Заинтересовал объект?
Мякоткина Кристина агент (918) 488-36-66

или позвоните по бесплатному номеру

8 800 550 55 97

или заполните форму обратной связи

ПОХОЖИЕ ОБЪЕКТЫ

1-к. квартира 53.2 кв.м, 3/5

Анапа, ул Ленина

7 000 000 руб.

1-к. квартира 43.7 кв.м, 4/6

Анапа, ул Парковая

6 180 000 руб.

1-к. квартира 41 кв.м, 2/16

Анапа, ул Ленина

6 860 000 руб.

1-к. квартира 33.2 кв.м, 3/5

Сукко, ул Мирная

6 900 000 руб.

1-к. квартира 40 кв.м, 5/13

Анапа, ул Крестьянская

6 800 000 руб.

2-к. квартира 58 кв.м, 16/17

Анапа, Супсехское шоссе

6 800 000 руб.